终端盖板 - 日光灯槽
材質:SUS304 鍍鋅鐵
|
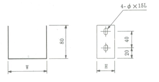
鋁製線槽 ALUMINUM RACEWAY |
線槽寬度 W |
線槽高度 H |
|
型 號 Cat.No |
||
|
CLA15E |
93 |
43 |
|
CLA75E |
69 |
44 |

